德州寶林商務辦公樓
文章出處:博悅佳輕質隔墻板 人氣:發表時間:2014-01-01
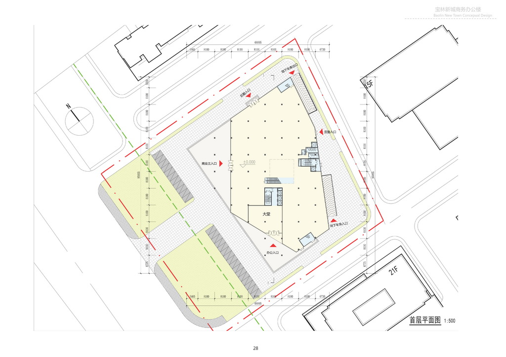
本項目位于山東德州市,建筑面積2.5萬平米。此基地具有一定的特殊性,限高50米,東面、南面和北面都有高樓遮擋,且前后距離很近。只有西面具有較開闊 視野和西南角有一景觀公園等有利因素。為了取得較好視野和景觀朝向,塔樓和裙房不得不轉動一定的角度,在不影響裙房商業價值的前提下,讓塔樓的視野朝向景 觀非常佳的西面和西南面。但由此產生塔樓西曬問題,為了解決西曬對辦公空間的影響,我們在標準的方形塔樓四周懸挑出三角形的露臺,上下位置錯開,上層露臺可 以給下層辦公空間遮陽。
上下兩個露臺通過垂直綠化聯系,不僅提高辦公環境檔次,也柔化了塔樓兩個尖角,盡量減小對周邊建筑的不利影響
http://www.hrjksx.cn
博悅佳輕質隔墻板咨詢熱線:400-013-9278 、 18071719278(施先生)。
同類文章排行
- 安徽推進建筑垃圾資源有效利用
- 電子商務入侵建材設備市場,輕質隔墻板設備輕
- 今年石家莊全市將建設600余套裝配式農村住房
- 日照市聚力推動“日照建造”品牌揚帆海外
- 實心輕質墻板發展遭遇新商機
- 武漢市通報2021年裝配式建筑目標任務完成情況
- 輕質墻板新標準筑造舒適住宅環境
- 如何選擇輕質隔墻板批發商?
- 培養造就更多建筑業技能人才
- 湖北住宅模數化研究取得重要成果
- 易燃保溫材料將慢慢淡出視線,聚苯乙烯產品占
- 武漢輕質隔墻板案例之:虎泉時尚廣場
- 湖北博悅佳輕質隔墻板帶您解決解決房屋返潮漏
- 湖南裝配式建筑產業快速發展
- 輕質隔墻板是KTV隔墻板絕佳的隔音選擇






